【Yishun】 North Gaia (D27)
Project Details
THE WATERGARDENS 沁水轩
D27 坎贝拉
【North Condo】
Pricing From:
3.4.5 BEDROOM AVAILABLE
(1 BEDROOM SOLD OUT)
1 Bed | 1 Bath |
484 Sqft | $1,938 psf |
99 Yrs Leasehold 616 Units TOP Jun 2027 Height 5 Storey 3 Bed 3 Bed + Yard 3 Bed 3 + Study 3 Bed + Yard + Study 4 Bed 5 Bed

Only 4 Mins Walk to Canberra MRT / Canberra Plaza! One of the Last Few New Launches near MRT with AFFORDABLE Prices!
Capital Protection and Assurance! Surrounded with Future HDB Upgraders!
Chongfu Primary School (Top 8 Primary School in SG) and Canberra Primary School (Top 45) is within 2km radius !
Resort-Living Lifestyle with Landed Views all day! Upcoming North-South Corridor Expressway to get to Central within 15 Mins!
Upcoming Bukit Canberra Town at Sembawang MRT with an array of Facilities for all ages to enjoy!

PROJECT DETAILS
LAYOUT(S) |
Size |
PSF |
Price |
---|---|---|---|
|
958+ | $1,043 | $1,000,000 |
3 + Yard
|
1001+ | $1,049 | $1,050,000 |
3 + Yard + Study
|
1055+ | $1,090 | $1,150,000 |
4 Bed
|
1313+ | $1,028 | $1,350,000 |
5 Bed
|
1593+ | $1,010 | $1,610,000 |
Units Sold
|
(Y) = Yard
(S) = Study
*All Pricing Are Subjected to Developer Changes & Availability. Contact Us Now.
Project Name | North Gaia |
---|---|
|
|
Tenure: |
99 Yrs |
TOP: |
Jun 2027 |
Location: |
25 Yishun Close , Singapore 769341 |
Number of Units: |
616 Units |
Building Height: |
14 Storey |
No of Facilities: |
60 |
Layout Types |
Sqft |
Units |
3 Bedroom | 678 | 80 |
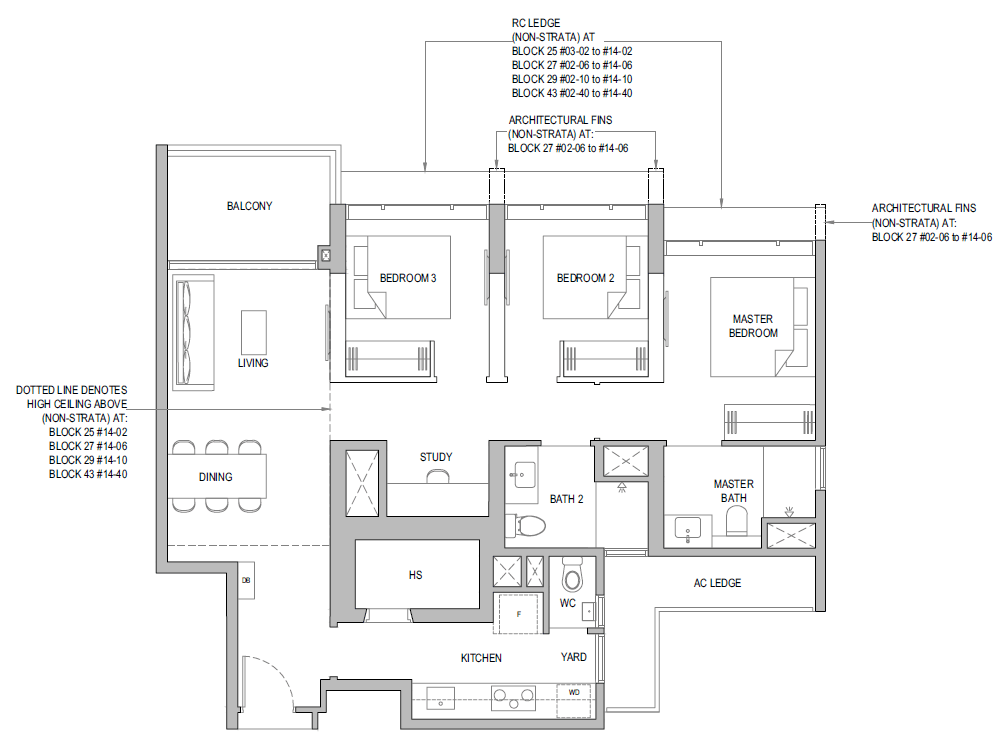
3 Bedroom + Yard | 753 - 936 | 119 |
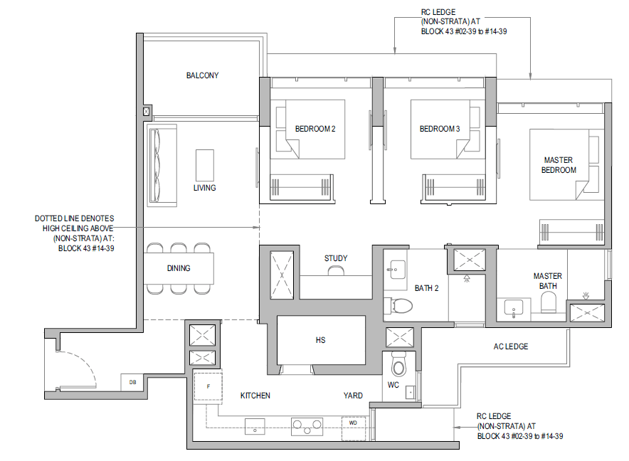
3 Bedroom + Yard + Study | 797 | 20 |
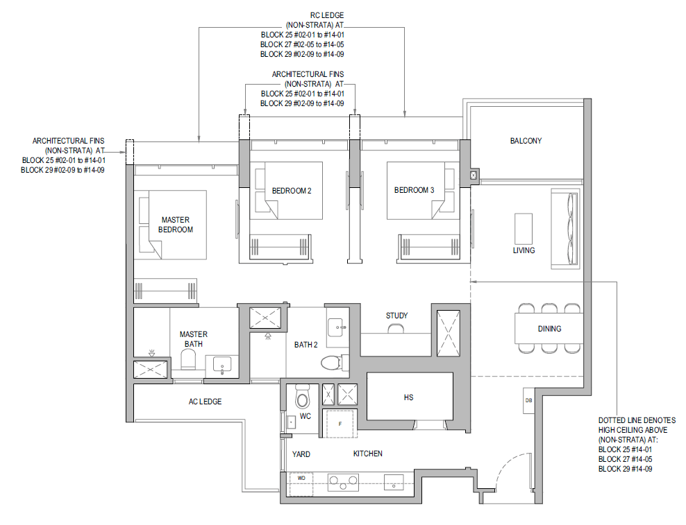
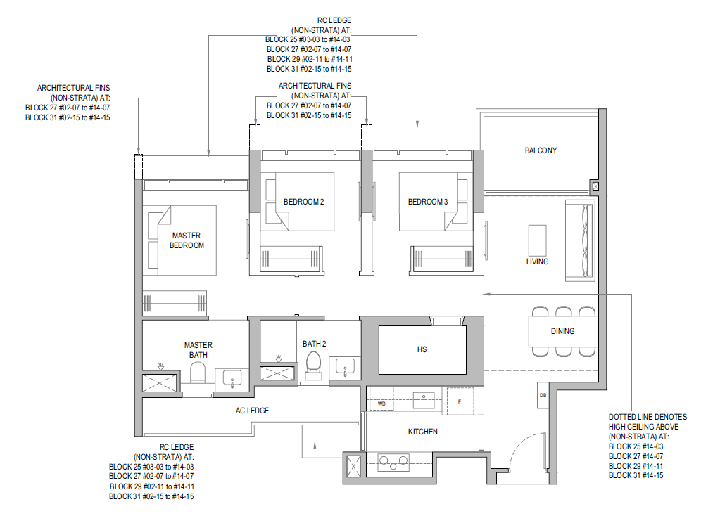
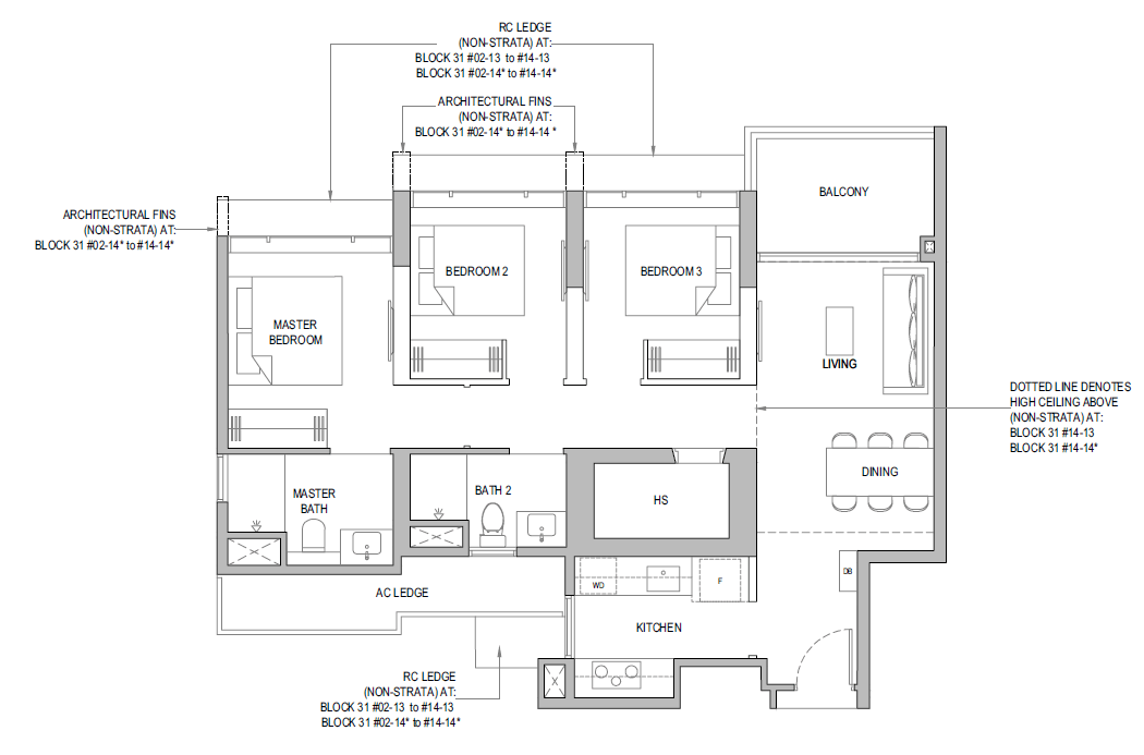
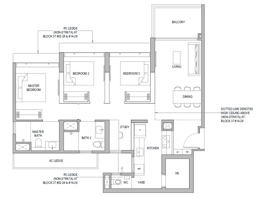
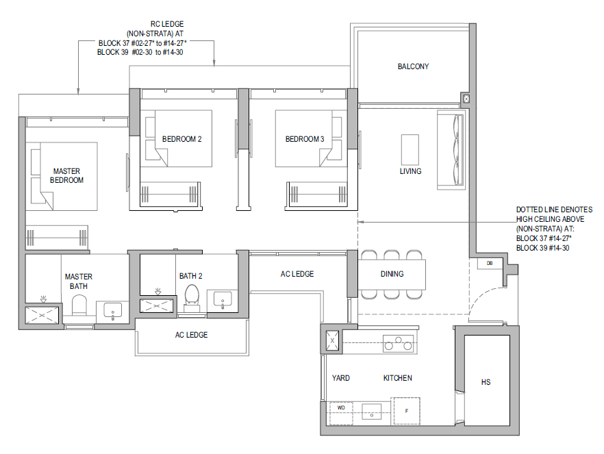
4 Bedroom | 958 - 1163 | 94 |
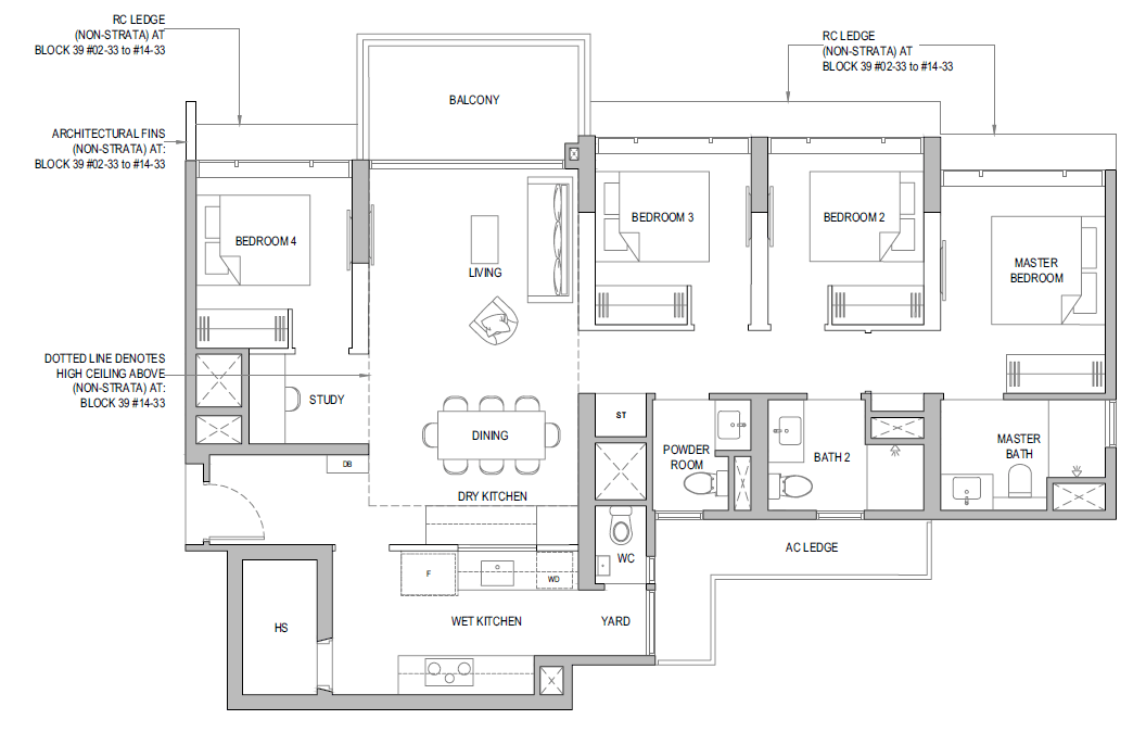
5 Bedroom | 1206 | 10 |
LOCATION DETAILS

Why Buyers buy here?
AMENITIES
MRT | School | Supermarket | Mall
YISHUN MRT (1.25KM AWAY)
East West Line (EWL)
North South Line (NSL)
North East Line (NEL)
Circle Line (CCL)
Downtown Line (DTL)
Thomson-East Coast Line (TEL)
Jurong Region Line (JRL)
Cross Island Line (CRL)
- 1. CHONGFU SCHOOL [TOP 8]
(750M AWAY) - 2. XISHAN PRIMARY SCHOOL
(850M AWAY) - 3. NORTH VIEW PRIMARY SCHOOL
(900M AWAY) - 4. HUAMIN PRIMARY SCHOOL
(930M AWAY)
- 1. JIEMIN PRIMARY SCHOOL
- 2. AHMAD IBRAHIM PRIMARY SCHOOL
- 3. NORTHLAND PRIMARY SCHOOL
- 4. YISHUN PRIMARY SCHOOL
- NTUC SUPERMARKET
(600M AWAY) - GIANT SUPERMARKET
(850M AWAY)
SITE PLAN
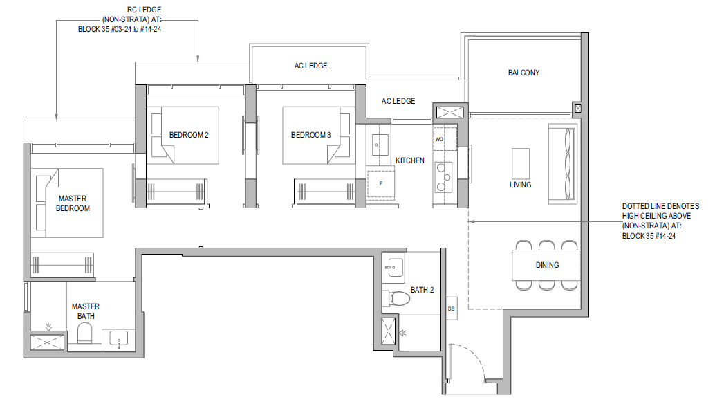
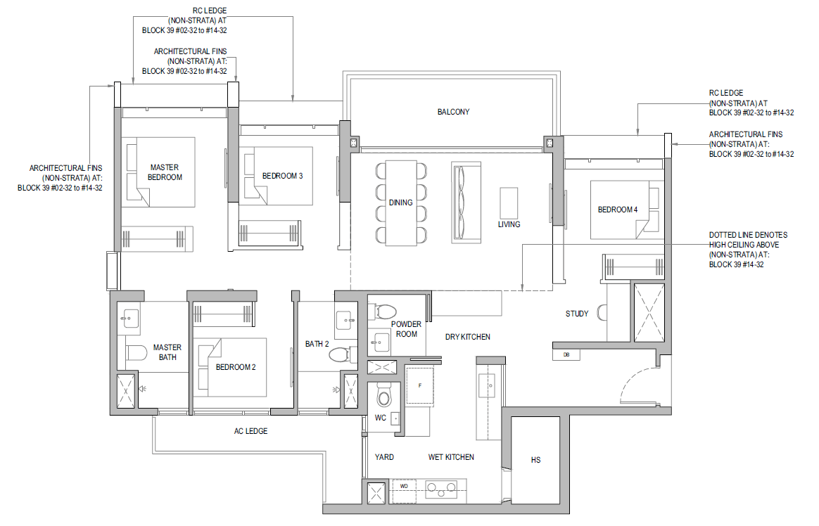
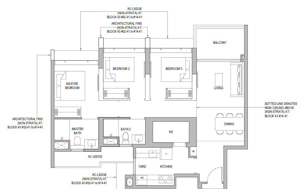
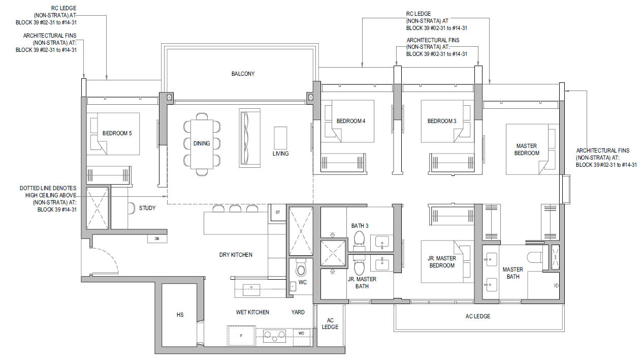
FLOOR PLAN
Type: C1
Price: | $ | 1000000 | 1,000,000 |
1000000 | 0.25 | ||
1000000 | 0.75 | ||
25% *D.P: | $ | 250,000 | |
75% Loan: | $ | 750000 | 750,000 |
Tenure: | 30 | ||
Interest: | 1% | ||
Monthly: | $ | 2,412 | |
750000 | 0.01 | ||
7500 | 30 | ||
225000 | 750000 | ||
975000 | 0.00360 | ||
3510 | 0.6873 |
you have to Re-Tabulize 3 times for Calculation to be fully correct !!
*All Pricing Are Subjected to Developer Changes & Availability. Contact Us Now.

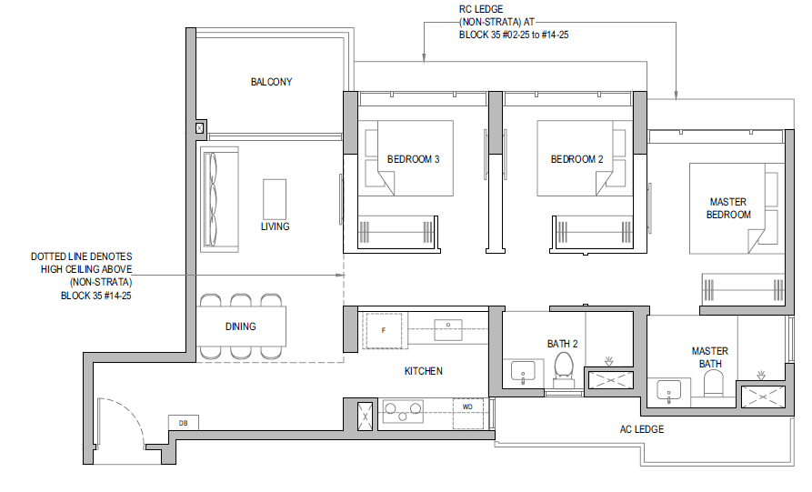
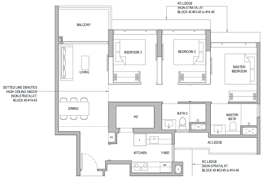
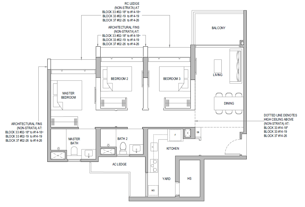
958 Sqft


958 Sqft

969 Sqft

969 Sqft

980 Sqft
Type: CY1a
Price: | $ | 1050000 | 1,050,000 |
1050000 | 0.25 | ||
1050000 | 0.75 | ||
25% *D.P: | $ | 262,500 | |
75% Loan: | $ | 787500 | 787,500 |
Tenure: | 30 | ||
Interest: | 1% | ||
Monthly: | $ | 2,533 | |
787500 | 0.01 | ||
7875 | 30 | ||
236250 | 787500 | ||
1023750 | 0.00360 | ||
3685.5 | 0.6873 |
you have to Re-Tabulize 3 times for Calculation to be fully correct !!
*All Pricing Are Subjected to Developer Changes & Availability. Contact Us Now.

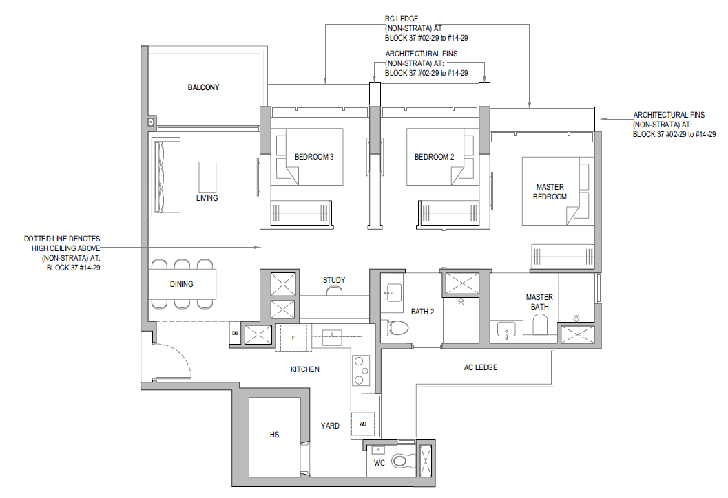
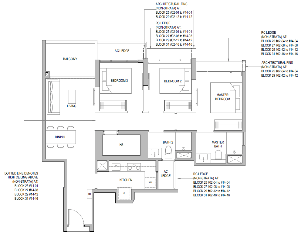
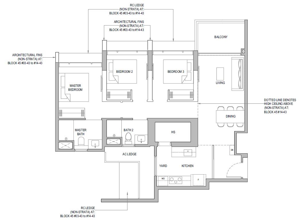
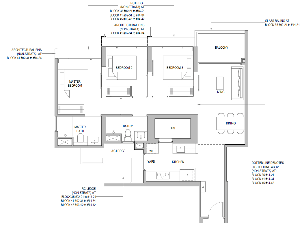
1001 Sqft

1001 Sqft

1001 Sqft

1001 Sqft

1001 Sqft

1001 Sqft

1033 Sqft

1023 Sqft
Type: CS1
Price: | $ | 1100000 | 1,100,000 |
1100000 | 0.25 | ||
1100000 | 0.75 | ||
25% *D.P: | $ | 275,000 | |
75% Loan: | $ | 825000 | 825,000 |
Tenure: | 30 | ||
Interest: | 1% | ||
Monthly: | $ | 2,654 | |
825000 | 0.01 | ||
8250 | 30 | ||
247500 | 825000 | ||
1072500 | 0.00360 | ||
3861 | 0.6873 |
you have to Re-Tabulize 3 times for Calculation to be fully correct !!
*All Pricing Are Subjected to Developer Changes & Availability. Contact Us Now.

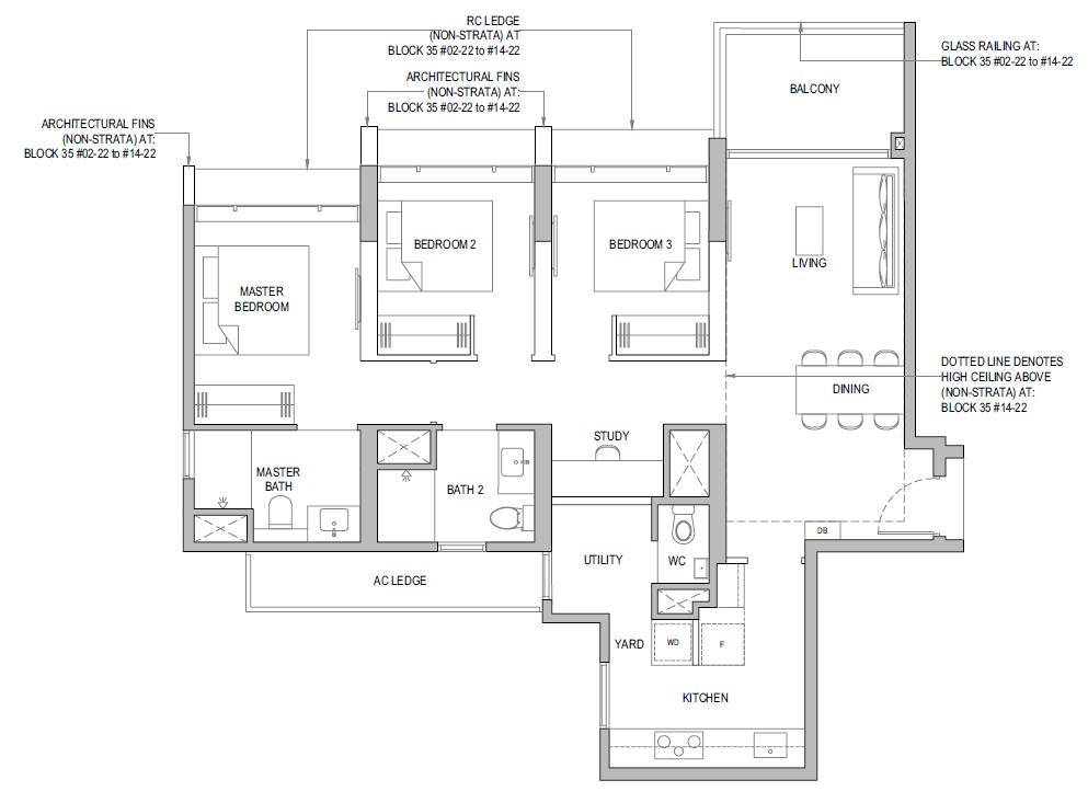
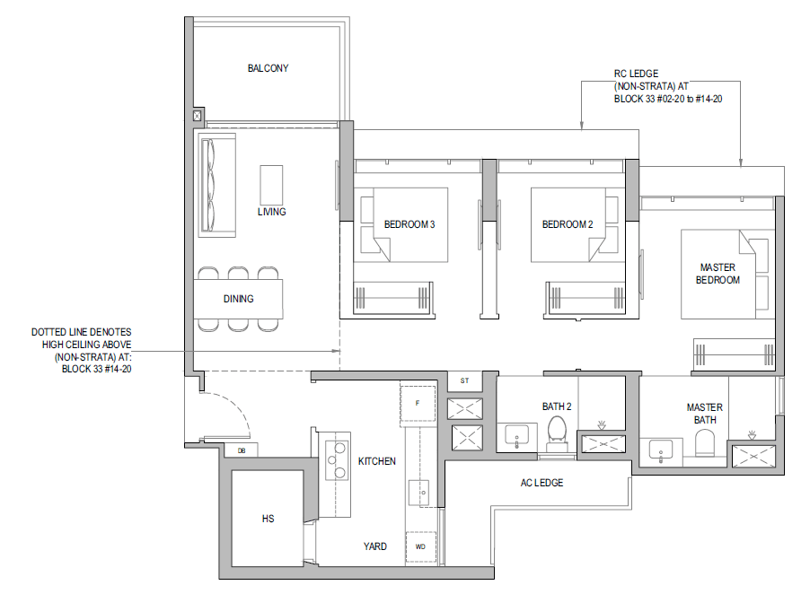
1055 Sqft

1066 Sqft


1066 Sqft


1066 Sqft


1076 Sqft


1076 Sqft


1076 Sqft


1076 Sqft

Type: D1
Price: | $ | 1350000 | 1,350,000 |
1350000 | 0.25 | ||
1350000 | 0.75 | ||
25% *D.P: | $ | 337,500 | |
75% Loan: | $ | 1012500 | 1,012,500 |
Tenure: | 30 | ||
Interest: | 1% | ||
Monthly: | $ | 3,257 | |
1012500 | 0.01 | ||
10125 | 30 | ||
303750 | 1012500 | ||
1316250 | 0.00360 | ||
4738.5 | 0.6873 |
you have to Re-Tabulize 3 times for Calculation to be fully correct !!
*All Pricing Are Subjected to Developer Changes & Availability. Contact Us Now.

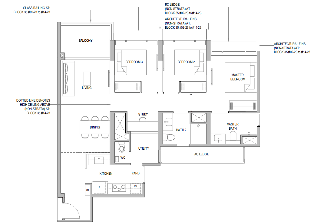
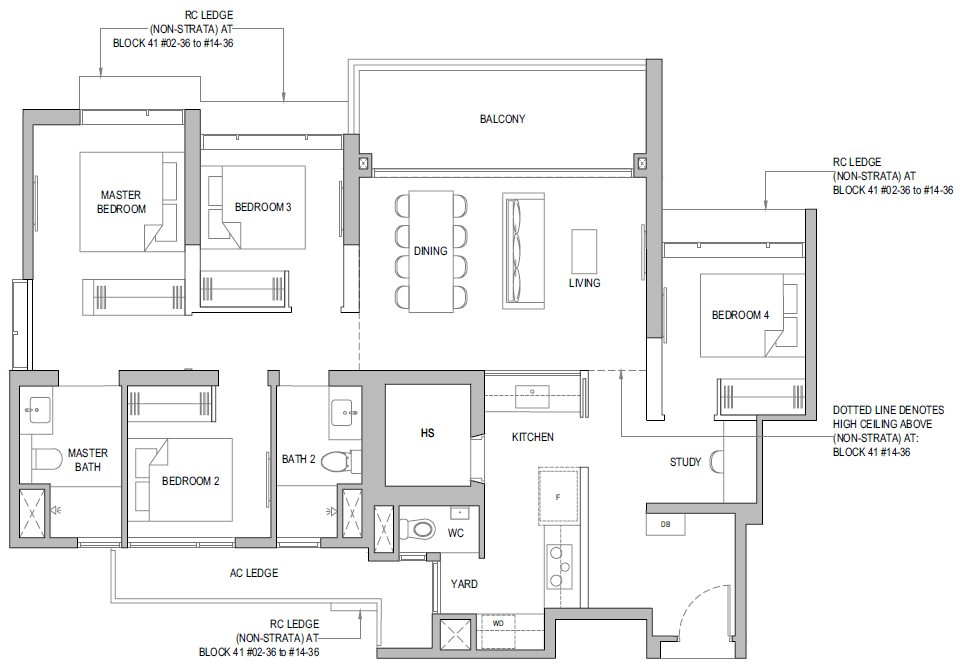
1313 Sqft


1313 Sqft

1335 Sqft


1389 Sqft
Type: E1
Price: | $ | 1610000 | 1,610,000 |
1610000 | 0.25 | ||
1610000 | 0.75 | ||
25% *D.P: | $ | 402,500 | |
75% Loan: | $ | 1207500 | 1,207,500 |
Tenure: | 30 | ||
Interest: | 1% | ||
Monthly: | $ | 3,884 | |
1207500 | 0.01 | ||
12075 | 30 | ||
362250 | 1207500 | ||
1569750 | 0.00360 | ||
5651.1 | 0.6873 |
you have to Re-Tabulize 3 times for Calculation to be fully correct !!
*All Pricing Are Subjected to Developer Changes & Availability. Contact Us Now.

1593 Sqft
DIRECT DEVELOPER PRICE
100% Best Price Guarantee ! Early Bird Price ! Exclusive VVIP Preview !
FAST RESPONSE TIME
Immediate Viewing of All Multiples Showflat for Comparison
Free Cash-Flow & Timeline Planning
Lifetime After-sales Services Provided
BEST BUYERS' EXPERIENCE
Have A Ease of Mind Seamless Transition to Your Next New Home
Proven in-House Asset Capital Growth Strategists for Your Current to Future Property's Stages Direction
Call Us At +65-61007118
For Latest Pricing, Brochure & Viewing Arrangement.